Description
Dieses ehemalige Bauernhaus mit Oekonomiegebäuden und 4'800 m2 Land im idyllischen Welschenrohr (SO) befindet sich in der landwirtschaftlichen Kernzone (Bauzone mit Einschränkungen) und umfasst 3 Grundstücke:
GB Nr. 815 Wohnhaus mit 2-3 Wohneinheiten, ehemaligem Kuhstall mit grosser Scheune; Grundstückfläche 733 m2
GB Nr. 449 Doppelgarage und Gemüsegarten; Grundstückfläche 425 m2
GB Nr. 478 Stallgebäude mit Werkstatt und separatem Hühnerhaus; Grundstückfläche 3'642 m2
Das Wohnhaus befindet sich ihn einem guten und gepflegten Zustand und wurde laufend gut unterhalten. Es verfügt derzeit über zwei Wohnungen, wovon eine vermietet ist. Mit überschaubarem Aufwand könnte das Raumangebot zu drei Wohnungen erweitert werden.
Neben dem Wohnhaus bietet eine freistehende Doppelgarage Platz für 2 PKW's und ein zusätzlicher Garagenplatz befindet sich im Souterrain des Wohnhauses. Auf den Aussenflächen können mind. 5 weitere Fahrzeuge abgestellt werden.
Die landwirtschaftliche Tätigkeit wurde vor einigen Jahren eingestellt. Seither wurden der angebauten Stallbereich, die Scheune und das separate Stallgebäude mit Werkstatt sowie das Hühnerhaus nicht mehr zu landwirtschaftlichen Zwecken genutzt, jedoch ebenfalls stets gepflegt und unterhalten. Ein Teil des separaten Stallgebäudes wird heute noch zum Unterstellen von landwirtschaftlichen Fahrzeugen/Geräten genutzt. Dieses Grundstück würde sich z.B. hervorragend für die Pferdehaltung mit direkt angeschlossener Koppel anbieten. Auch andere Nutz- oder Hobby-Tierhaltung ist möglich.
Dieses attraktive Angebot spricht verschiedenste Käufergruppen an:
- Renditeobjekt (3 Wohnungen, diverse Gewerberäume im Bereich Stall, Scheune)
- Familienwohnsitz mit grossem Haupthaus und viel Land
- Mehrgenerationenhaus mit Gewerberäumen (Umbau/Ausbau Scheune/Stall), Kombination aus Wohnen und Arbeiten
- landwirtschaftliche Nebentätigkeiten z.B. Gemüseanbau für den Eigenbedarf oder Nutz- oder Hobby-Tierhaltung
- Der separate Stall würde sich z.B. hervorragend für die Pferdehaltung mit direkt angeschlossener Koppel anbieten.
Ergreifen Sie diese seltene Gelegenheit individuelle Wohnträume wahr werden zu lassen. Gerne werde ich Ihnen bei einer Besichtigung die Vorzüge dieser umfangreichen Liegenschaften aufzeigen.
Situation
Die Grundstücke befinden sich zentral im sonnigen Welschenrohr zu beiden Seiten der Hauptstrasse. Das Stallgebäude mit Hühnerhaus und grosser Grünfläche liegt ruhig und etwas zurückversetzt und ist über einen Zufahrtsweg an die Hauptstrasse erschlossen. Nach Süden hin grenzt das Grundstück an die Dünnern. Die Grundstücke mit dem Wohnhaus, der Scheune und dem Garagengebäude sind von zwei Seiten her erschlossen.
In 3-5 Minuten erreicht man zu Fuss das Zentrum mit Einkaufsmöglichkeiten oder die Bushaltestelle, Kindergarten und Schule sind ca. 8-10 Minuten entfernt.
Welschenrohr erreicht man mit dem Auto über die gut ausgebaute Thalstrasse/Dünnernstrasse, welche direkt von der Autobahn A1/A2 (Ausfahrt Oensingen) und der Transjurae A16 (Ausfahrt Court) in den Ort führt. In kurzer Zeit ist man mit dem Auto in Balsthal, Oensingen oder Moutier, wo einem sämtliche Dienstleistungen und Einkaufsmöglichkeiten zur Verfügung stehen. Mit der Postautolinie ist Welschenrohr gut an das öffentliche Verkehrsnetz angebunden.
The commune
Welschenrohr ist eine Ortschaft in der Gemeinde Welschenrohr-Gänsbrunnen im Bezirk Thal des Kantons Solothurn. Der französische Name lautet Rosières. Am 1. Januar 2021 fusionierte Welschenrohr mit Gänsbrunnen zur neuen Gemeinde Welschenrohr-Gänsbrunnen.
Welschenrohr liegt auf 680m ü.M., 13 km westsüdwestlich des Bezirkshauptortes Balsthal und 8 km nördlich der Kantonshauptstadt Solothurn (Luftlinie). Welschenrohr-Gänsbrunnen ist umgeben von einem grossen, vielfältigen Wandergebiet. Südlich liegt die erste Jurakette mit Balmberg und Weissenstein, nördlich die zweite Jurakette, die ebenfalls viele Wandermöglichkeiten bietet. Gut ausgebaute Wander- und Waldwege mit schönen Plätzen und Feuerstellen laden Naturverbundene zum Verweilen und Erholen ein. Die Wolfsschlucht mit ihrer unberührten Natur ist besonders sehenswert. Die grosse Waldfläche um das Dorf herum trägt viel zur guten Luftqualität bei.
Einwohner per 1.1.2023: 1'184 Personen Steuerfuss 2024: 124%
Sportlich und kulturell Interessierte können ihrem Hobby in einem der zahlreichen Vereine nachgehen und so ihre Freizeit sinnvoll gestalten. Auch für die jüngere Generation gibt es zahlreiche Möglichkeiten für die Freizeitgestaltung, sei es in einem der Sportvereine oder bei Jungwacht und Blauring. Die sehr gut ausgebaute Infrastruktur lockt Sportler aus dem ganzen Thal und sogar der weiteren Umgebung nach Welschenrohr. Im Winter bieten sich in der Region verschiedene Wintersportmöglichkeiten an.
Welschenrohr-Gänsbrunnen bietet sich als attraktive Wohngemeinde an, vor allem auch für Familien. Wer die Schönheiten der Landschaft und die Natur schätzt und trotzdem nahe bei den Zentren im Mittelland wohnen möchte, der entscheidet sich für Welschenrohr-Gänsbrunnen.
Wirtschaft:
Noch heute haben der Ackerbau und der Obstbau (in den tieferen Lagen) sowie die Milchwirtschaft und die Viehzucht einen gewissen Stellenwert in der Erwerbsstruktur der Bevölkerung. Zahlreiche Arbeitsplätze sind im Gewerbe und im Dienstleistungssektor vorhanden. In Welschenrohr sind heute Betriebe der elektronischen Industrie, der Präzisionsmechanik, des Baugewerbes, der Holzverarbeitung, des Maschinenbaus, der pharmazeutischen Industrie und Druckereien vertreten.
Bildung:
Kindergarten und Primarschule können im Dorf besucht werden, die Oberstufe in Matzendorf und Balsthal.
Verkehr:
Die Ortschaft ist verkehrsmässig recht gut erschlossen. Sie liegt an der Hauptstrasse von Oensingen nach Moutier. Durch einen Postautokurs, der die Strecke von Balsthal nach Gänsbrunnen bedient, ist Welschenrohr an das Netz des öffentlichen Verkehrs angeschlossen.
Construction
Flächen- und Raumangebot:
GB Nr. 815 Wohnhaus mit 2-3 Wohneinheiten, ehem. Kuhstall mit Scheune; Grundstückfläche 733 m2
GB Nr. 449 Garagengebäude und Gemüsegarten; Grundstückfläche 425 m2
GB Nr. 478 Stallgebäude und Hühnerhaus; Grundstückfläche 3'642 m2
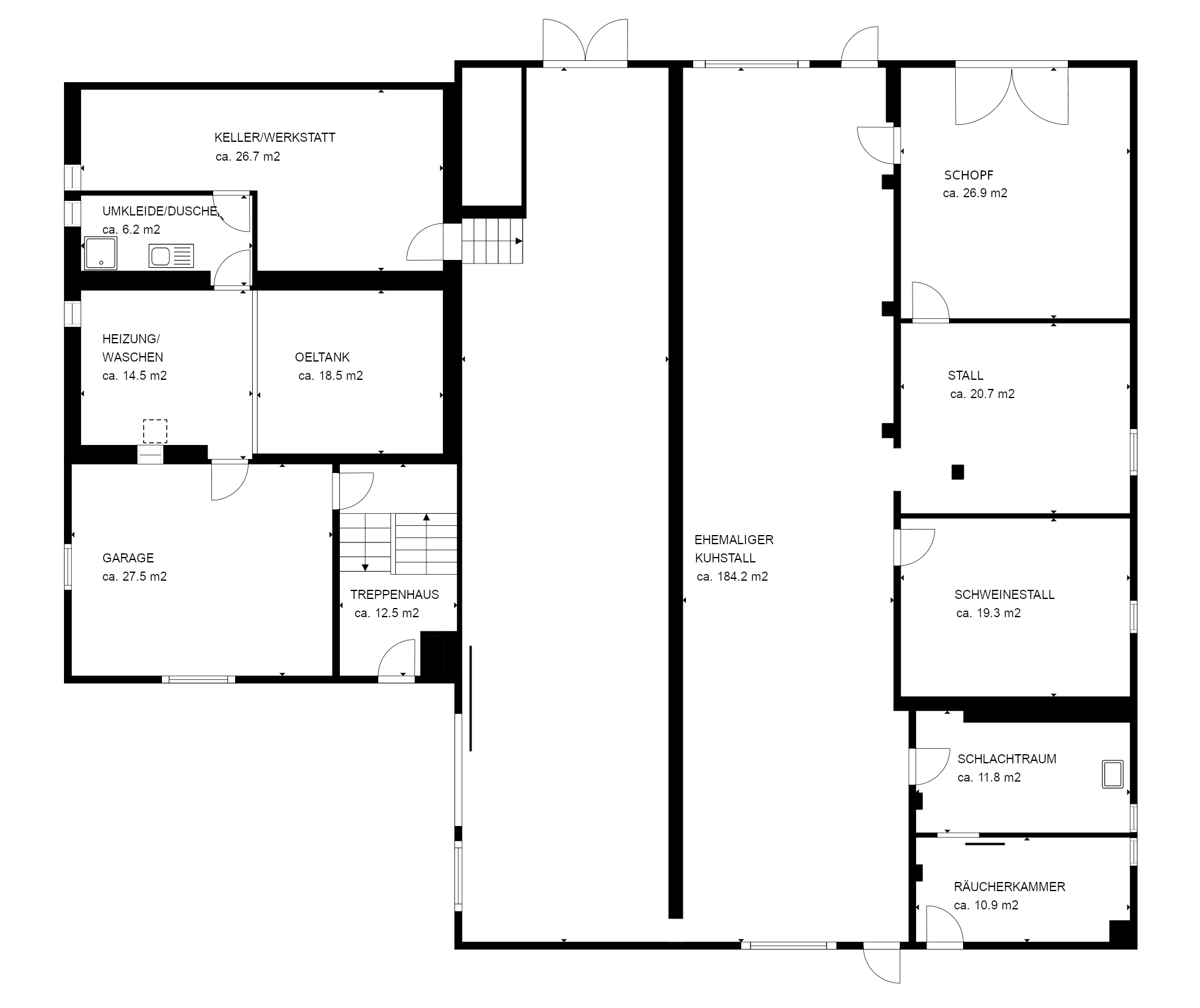
Das Wohnhaus verfügt derzeit über zwei Wohnungen, wovon eine vermietet ist. Mit überschaubarem Aufwand könnte das Raumangebot zu drei Wohnungen umgebaut werden. Im Kellergeschoss befindet sich eine Einzelgarage, ein Raum mit Heizung und Oeltank sowie einer Waschmaschine, ein Umkleideraum (beheizt) mit Lavabo und Dusche und einen Kellerraum mit Werkstatt, welcher einen direkten Zugang in den ehemaligen Kuhstall gewährt.
Der ehem. Kuhstall beinhaltet neben den eigentlichen Kuhständen einen grossen Futtergang und fünf weitere Räume, wie z.B. einen Schweinestall, einen Schlachtraum und eine Räucherkammer. Über dem ehem. Kuhstall befindet sich die grosse Scheune mit Schiebetor und befestigter Auffahrt.
Die freistehende Doppelgarage neben dem Wohnhaus hat zwei separate Garagentore und einen zusätzlichen Stauraum unter dem Dach. Daneben befindet sich eine kleine Grünfläche und der gepflegte Gemüsegarten.
Auf der gegenüberliegenden Seite der Hauptstrasse befindet sich das grosse Grundstück mit dem separaten Stallgebäude und dem separaten Hühnerhaus. Das Stallgebäude ist aufgeteilt in den eigentlichen Stall und einen Bereich für Fahrzeugunterbringung und Werkstatt/Lager und verfügt zusätzlich über einen grosse Bühne/Dachraum. Neben dem Hühnerhaus ist auf dem ehemaligen Hühnerauslauf ein weiterer kleiner Gemüsegarten angelegt.
An den Liegenschaften wurde nebst weiteren fortlaufenden Kleinarbeiten, die nachfolgend aufgeführten Renovations-/ Umbau- und Erweiterungsarbeiten vorgenommen:
- ca. 1900 - Ursprüngliches Baujahr Haupthaus
- ca. 1954 - Neubau Scheune
- 1965-67 - Aufbau / Erweiterung des Haupthauses / Kernsanierung
- ca. 1978 - Neues Scheunendach
- ca. 1999 - Neubau Garagengebäude
- ca. 2004 - Ersatz Fensterläden (Aluminium) am ganzen Haus
- ca. 2004 - Anstrich Fassade
- ca. 2004 - Spenglerarbeiten
- ca. 2005 - Renovation Badezimmer 1. und 2.OG inkl. neue Leitungen, Armaturen, Bodenplatten
- ca. 2006 - Bodenplatten Treppenhaus, Esszimmer
- ca. 2006 - Elektroinstallationen
- ca. 2006 - Holztreppe + Geländer (Verbindung 1. und 2.OG)
- ca. 2006 - 4 neue Fenster (Kunststoff)
- ca. 2006 - Abrieb + Anstrich Hausgang, 8 Zimmer, 2 Badezimmer
- ca. 2007 - 7 Fenster (Holz-Aluminium) 3.OG
- ca. 2007 - Laminatböden 2. + 3.OG
- ca. 2009 - Vorplatz Haus koffern und ausebnen
- ca. 2010 - Vorplatz Haus teeren
- ca. 2010 - Wasserleitung
- ca. 2011 - 2 neue Haustüren
- ca. 2011 - Treppengeländer mit Handlauf, Fenstergitter (Aussenbereich)
- ca. 2014 - Neue Küche 3.OG
- ca. 2015 - Hühnerhaus mit Auslauf
- ca. 2018 - Neue Heizung (Oelkessel, Wärmepumpenboiler)
- ca. 2019 - Neue Küche 1.OG
- ca. 2019 - Malerarbeiten ganze Wohnung 1.OG
- ca. 2020 - Malerarbeiten ganze Wohnung 2.OG
- ca. 2020 - Isolation Badezimmer 3.OG via Scheune
Das Wohnhaus befindet sich ihn einem guten und gepflegten Zustand und wurde laufend gut unterhalten. Die landwirtschaftliche Tätigkeit wurde vor ca. 10 Jahren altershalber beendet. Seither wurden der angebaute Stallbereich, die Scheune und das separate Stallgebäude mit Werkstatt sowie das Hühnerhaus nicht mehr zu landwirtschaftlichen Zwecken genutzt, jedoch stets gepflegt und unterhalten. Ein Teil des separaten Stallgebäudes wird noch zum Unterstellen von landwirtschaftlichen Fahrzeugen/Geräten genutzt.
Lower ground floor
Vom Hauseingang aus führt das Treppenhaus ein Halbgeschoss hinunter in das untere Erdgeschoss. Dort befindet sich eine Garage mit einem Kipptor, welche von aussen über eine Rampe befahren werden kann. Weiter führt eine Türe zum Heizraum mit der Oelheizung, dem Wärmepumpenboiler und dem 10'000 Liter Oeltank. Ausserdem steht hier die Waschmaschine für den allgemeinen Gebrauch.
Der nächste Raum, welcher beheizt und grösstenteils mit keramischen Platten ausgestattet ist, diente bisher als Umkleide- und Waschraum. Er verfügt über ein Lavabo und eine Dusche. Daneben ist ein Lagerraum mit Werkstatt. Von hier aus gelangt man direkt hinüber in den ehemaligen Kuhstall.
Ground floor
Der ehemalige Kuhstall weist noch immer den Ausbau seiner Funktion auf, d.h. er wurde zwar geräumt, jedoch baulich bisher nicht verändert. Neben dem eigentlichen Kuhstall hat es noch drei separate kleinere Ställe sowie einen Schlacht- oder Milchverarbeitungsraum und eine Räucherkammer.
1st floor
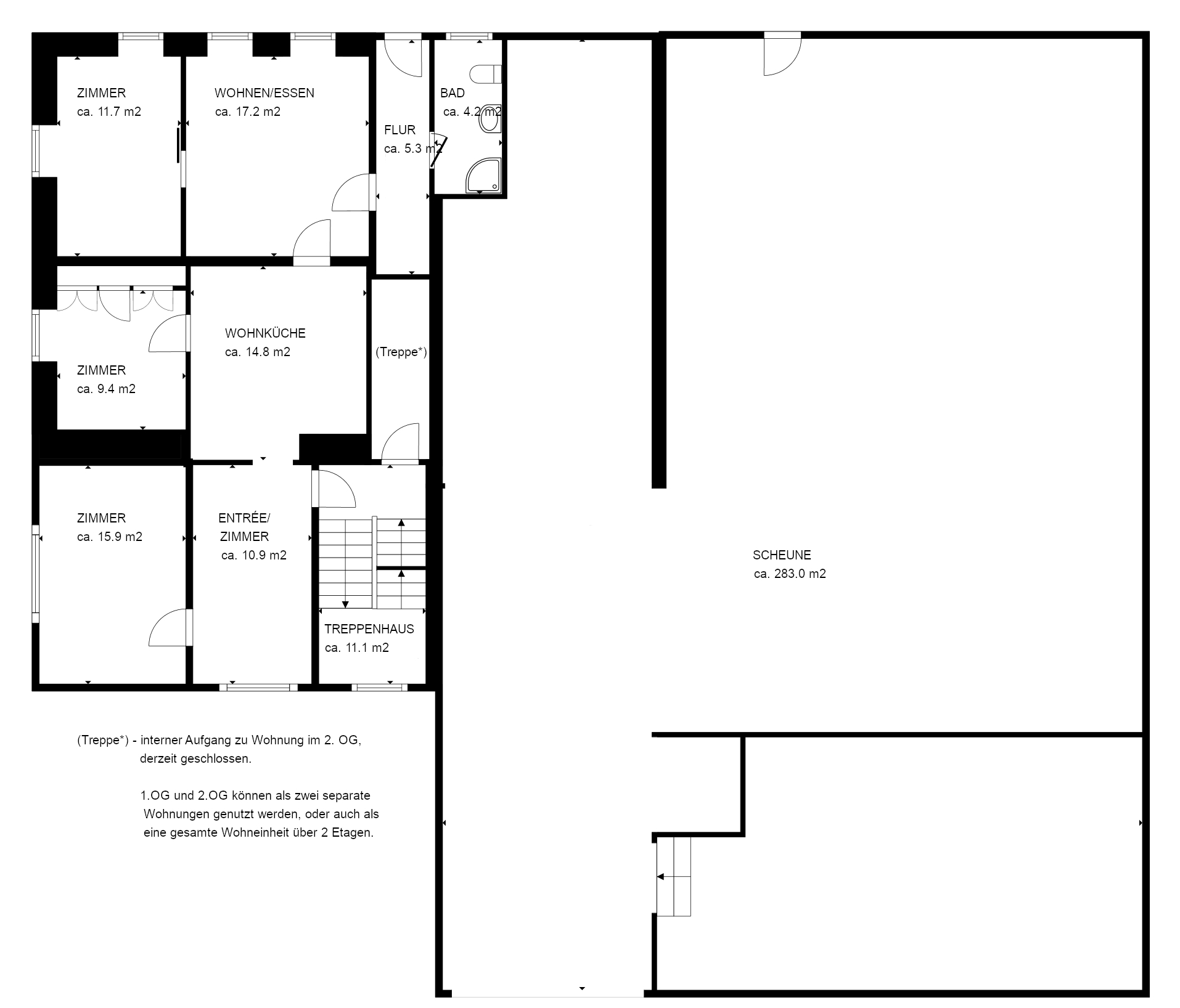
Die 5.5 Zimmer-Wohnung bietet knapp 90 m2 Wohnfläche und hat einen funktionsfähigen schönen Kachelofen im Wohnzimmer, welcher ideal zum Brotbacken ist. Die moderne weisse Einbau-Wohnküche ist mit allen gängigen Geräten ausgestattet. Das Badezimmer ist über den ehemaligen Hausflur erschlossen, welcher noch zum früheren Haupteingang des Hauses, von der Hauptstrasse her, gehört. Alle Wohnungen des Hauses sind jetzt über ein Treppenhaus auf der Rückseite des Gebäudes erschlossen.
Die Wohnung ist mit unterschiedlichen Bodenbelägen wie Plattenboden, Laminat und Teppichboden ausgestattet. Diese Wohnung ist derzeit vermietet.
Der ehemalige Hausflur wäre über eine Treppe die interne Verbindung zur Wohnung im 2.OG. D.h. die Wohnungen im 1. und 2.OG könnten zu einer grossen 9 Zimmer-Maisonette-Wohnung, mit insgesamt rund 180 m2 Wohnfläche, zusammengelegt werden. Derzeit ist der Durchgang geschlossen.
2nd floor
Die 4.5 Zimmer-Wohnung steht leer, ist aber in einem renovierten Zustand und könnte nach Einbau einer Küche sofort vermietet werden. Die rund 90 m2 grosse Wohnung hat ein grosses modernes Badezimmer mit Badewanne. In der Diele, in der Mitte der Wohnung, befindet sich die Treppe mit der internen Verbindung ins 1.OG (derzeit geschlossen). Hier sind sämtliche Anschlüsse für den Einbau einer Küche bereits vorhanden. Alle Zimmer sind hell und freundlich.
3rd floor
Die 3.5 Zimmer-Wohnung im 3.OG hat ca. 72 m2 Wohnfläche, plus einen zusätzlichen Abstellraum ausserhalb der Wohnung, vom Treppenhaus her zugänglich. Die Küche ist modern und grosszügig, alle ZImmer sind lichtdurchflutet und freundlich. Das Badezimmer verfügt über eine Badewanne. Im Flur existiert zudem eine Deckenluke mit Zugang zu einem Dachestrich.
Annexe
Die riesige, nicht ausgebaute Scheune befindet sich über dem ehemaligen Kuhstall und ist rückwärtig über eine befestigte grosse Zufahrtsrampe befahrbar. Die Grundfläche beträgt ca. 280 m2.
Outside conveniences
Neben dem Wohnhaus befindet sich die freistehende Doppelgarage mit zwei separaten Garagentoren und einem zusätzlichen Stauraum unter dem Dach. Daneben hat es eine kleine Grünfläche und einen grossen gepflegten Gemüsegarten. Seitlich von der Garage und auf dem ganzen Platz zwischen Garage und Wohnhaus, können weitere Fahrzeuge abgestellt werden. Neben dem jetzigen Haupteingang des Wohnhauses lässt sich ein grosses Tor in den ehem. Kuhstall öffnen.
Separates Grundstück mit Stallgebäude und Hühnerhaus:
Auf der anderen Seite der Hauptstrasse liegt das Grundstück mit dem separaten Stallgebäude und dem Hühnerhaus. Das Stallgebäude ist aufgeteilt in den eigentlichen Stall und einen Bereich für Fahrzeugunterbringung und Werkstatt/Lager. Über dem Stall hat es eine grosse Bühne/Dachraum. Der Stall würde sich z.B. hervorragend für die Pferdehaltung mit direkt angeschlossener Koppel anbieten. Auch andere Nutz- oder Hobby-Tierhaltung ist möglich. Hinter dem Hühnerhaus ist auf dem ehemaligen Hühnerauslauf ein weiterer kleiner Gemüsegarten angelegt.
Specialities
Keine Einschränkungen betreffend bäuerlichem Bodenrecht.
Nach Rücksprache mit dem Amt für Landwirtschaft wurde bestätigt, dass die Grundstücke, welche in der bäuerlichen Kernzone liegen, nicht dem bäuerlichen Bodenrecht unterstellt sind.
Die Grundstücke gehören nicht zu einem landwirtschaftlichen Gewerbe. Zudem sind die Grundstücke GB 815 und GB 449 kleiner als 25 a und liegen in der landwirtschaftlichen Kernzone. GB 478 ist grösser als 25 a, liegt aber auch in der landwirtschaftlichen Kernzone. Die landwirtschaftliche Kernzone hat zwar massgebliche Baubeschränkungen, ist aber rechtlich eine Bauzone. Entsprechend kommen die Bestimmungen des Bundesgesetzes über das bäuerliche Bodenrecht nicht zur Anwendung. Dies bedeutet, dass alle Grundstücke frei verkäuflich sind und der Käufer kein Landwirt sein und keine landwirtschaftliche Tätigkeit nachweisen muss.
Remarks
Transaktionskosten:
- Handänderungssteuern sowie Notariats- und Grundbuchgebühren gehen zu Lasten der Käuferschaft.
- Im Kanton Solothurn entfällt die Handänderungssteuer von 2.2% bei selbstgenutztem Wohneigentum.
Conveniences
Neighbourhood
- Village
- Green
- Shopping street
- Bus stop
- Child-friendly
- Playground
- Preschool
- Primary school
- Hiking trails
Outside conveniences
- Greenery
- Barn
- Parking
- Garage
Inside conveniences
- Without elevator
- Cellar
- Garret
- Storeroom
- Furnace
- Bright/sunny
- With character
Equipment
- Washing machine
Floor
- Tiles
- Laminated
Exposure
- Favourable
- All day
View
- Nice view
- Rural
Style
- Classic
- Rustic














































